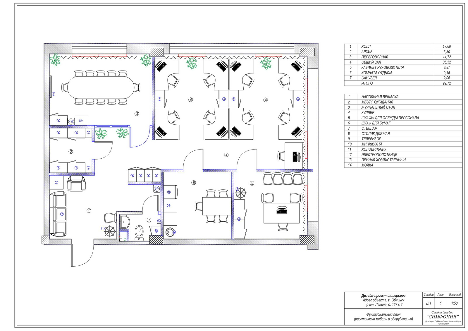
Дизайн-проект офиса строительной фирмы в ЖК «Циолковский».

Небольшой офис строительной компании в ЖК "Циолковский"

холл, дизайн интеьера в обнинске, офис холл, офис, дизайн интеьера в обнинске общественное помещение, офис холл, офис офис, общественное помещение open space, офис, общественное помещение офис кабинет, офис офис, кабинет кабинет, офис переговорная офис кухня, комната отдыха комната отдыха, кухня санузел функциональный