Назад: Дизайн трехкомнатной квартиры в МКР «Орехово» г. Москва
Когда нет своего дома, а жить в роскоши хочется, почему не устроить себе праздник жизни! Мы понимаем всех наших клиентов и готовы помочь им в реали...
Вперед: Дизайн интерьера квартиры в г. Мытищи
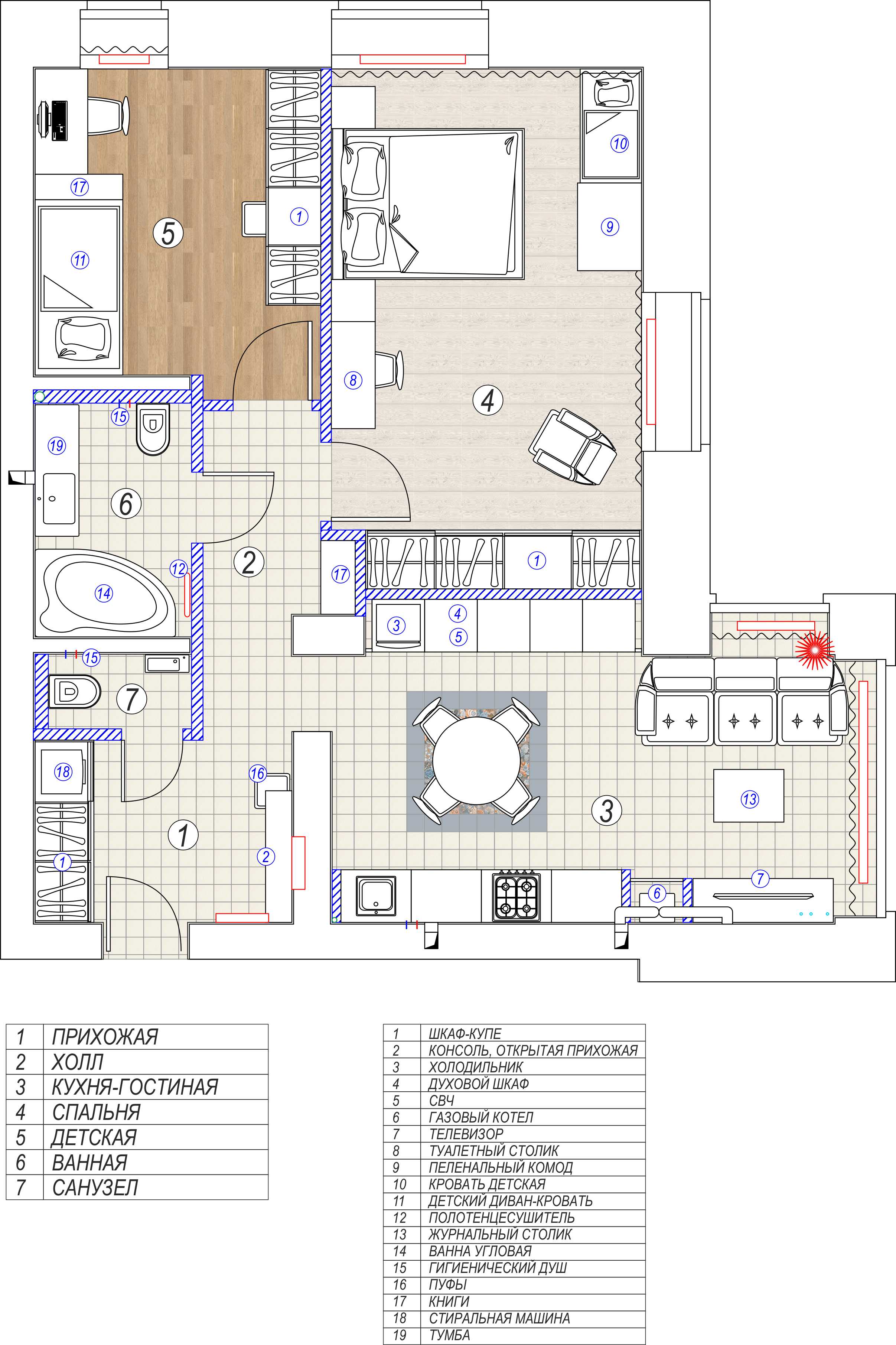
Дизайн интерьера квартиры свободной планировки, находящийся достаточно далеко от Обнинска, в г. Мытищи, что не помешало реализовать интересный прое...