Место для жизни и отдыха с комфортом.
Предлагаем вам красивое и эргономичное пространство под открытым небом. Мы по максимуму использовали природные возможности участка и превратили заброшенную, неблагоустроенную территорию в уютный уголок отдыха для большой дружной семьи.
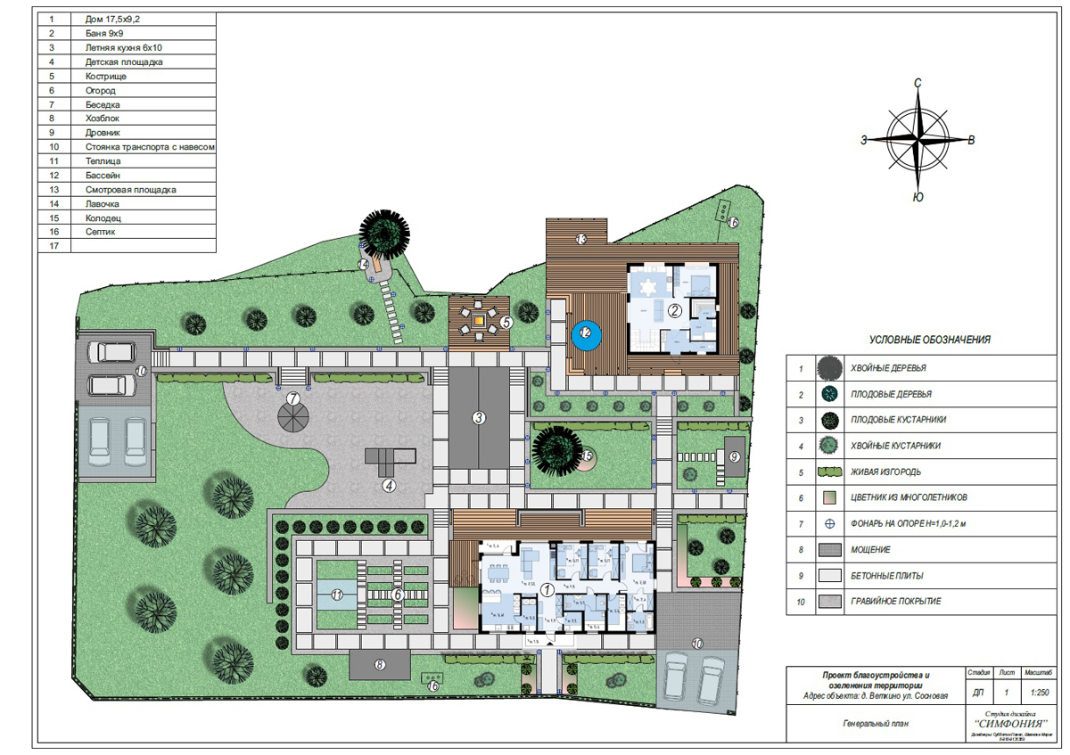
Стиль воплощен с помощью четких линий и строгих геометрических форм, которые прослеживаются в планировке дорожек и газонов, в конфигурации цветников, водоемов, террас. Дизайн не перегружен деталями, используется минимум аксессуаров, ограниченное количество растений. Ярким садовым цветам предпочитают сдержанную палитру и изысканные формы декоративных кустарников, хвойных.
По восприятию ландшафт близок к японскому саду с атмосферой умиротворения, спокойствия, гармонии с окружающей природой.
Современный сад – это не парк аттракционов, который должен впечатлять или развлекать. Это место, где вы будете чувствовать себя уютно и легко. Место, которое будете наполнять собственным смыслом.
Стиль воплощен с помощью четких линий и строгих геометрических форм, которые прослеживаются в планировке дорожек и газонов, в конфигурации цветников, водоемов, террас. Дизайн не перегружен деталями, используется минимум аксессуаров, ограниченное количество растений. Ярким садовым цветам предпочитают сдержанную палитру и изысканные формы декоративных кустарников, хвойных.
По восприятию ландшафт близок к японскому саду с атмосферой умиротворения, спокойствия, гармонии с окружающей природой.
Современный сад – это не парк аттракционов, который должен впечатлять или развлекать. Это место, где вы будете чувствовать себя уютно и легко. Место, которое будете наполнять собственным смыслом.