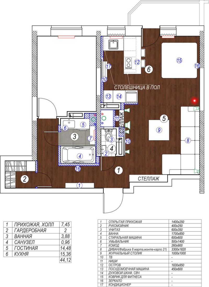
Дизайн проект интерьера квариры в ЖК «Новый город».

Хозяева, молодая пара, ведущие активный образ жизни с самого начала хотели лофт.

Созданный нами дизайн интерьера в Обнинске, выглядит брутальным за счет использования в оформлении стен декоративных финишных штукатурок, имитирующих бетон, и икусственного кирпича.С грубыми поверхностями стен сочетаются гладкие белые поверхности мебели, массивная половая доска, кожанная обивка дивана и огромный постер любимой собаки напечатанный на заказ.

Большое внимание уделено свету. Специально открытая проводка и словно небрежно развешенные источники света создают яркую и в то же время уютную атмосферу.

прихожая, лофт, современный интерьер прихожая, лофт, современный интерьер прихожая, лофт, современный интерьер прихожая, лофт, современный интерьер гостиная, лофт, студия гостиная, лофт, студия гостиная, лофт, студия лофт, гостиная, студия лофт, студия, кухня лофт, студия, кухня лофт, студия, кухня лофт, студия, кухня лофт, санузел лофт, санузел функциональный