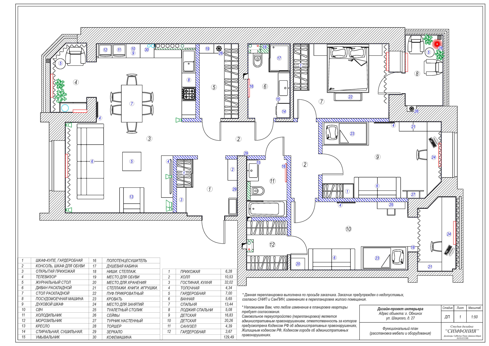
Дизайн квартиры в ЖК «Репинка» г. Обнинск.

Дизайн проект просторной квартиры в Обнинске, в ЖК «Репинка» для небольшой дружной семьи. Основной задачей проекта было сделать так, чтобы всем жителям квартиры было комфортно и удобно. прихожая прихожая прихожая прихожая холл холл гостиная гостиная гостиная гостиная кухня кухня кухня кухня гардеробная ванная ванная ванная спальня спальня спальня лоджия детская детская детская детская детская детская детская детская детская детская ванная ванная ванная ванная гардеробная функциональный