Дизайн кафе-магазина в Обнинске.

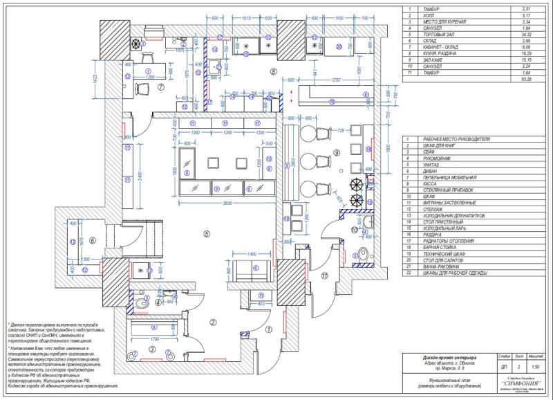
Ниже представлен фрагмент дизайн-проект магазина и кафе в г. Обнинске

холл, лофт дизайн интеьера в обнинске торговый зал, магазин, лофт дизайн магазина, лофт, магазин магазин, лофт, дизайн интеьера в обнинске дизайн в стиле лофт, общественное помещение кабинет, общественное помещение, офис офис, кабинет, дизайн интеьера в обнинске кафе, дизайн кафе, лофт дизайн кафе, современный интерьер, лофт кафе, лофт санузел, дизайн санузла, лофт дизайн интеьера в обнинске, санузел, лофт функциональный