Бежевый интерьер с бордовым диваном.

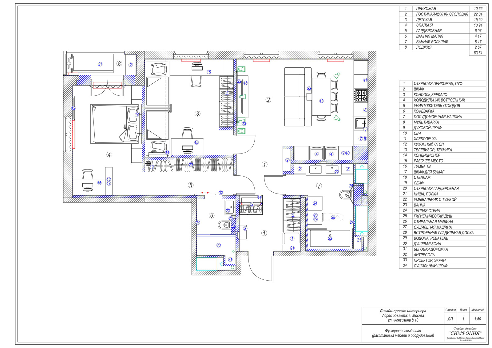
Вашему вниманию предлагается дизайн квартиры в Москве. Интерьер получился достаточно минималистичным и монохромным. Немного добавили цвета в детскую, но и то очень лаконично. В некоторых моментах пришлось уступить хозяйке, например полукруглое зеркало в прихожей. Интернет не всегда помогает. :-) Локация объекта - Москва, улица Фонвизина

дизайн прихожей